【1日限定!】リノベーション解体現場見学会 in東中野
てまひま不動産がリノベーションを行うマンションの「解体現場見学会」を行います。
今回は、フルリノベーション予定のお客様邸にて開催!
マンション躯体が見られる、スケルトン状態をご案内します。
見られるのは1日限定!
マンションの基礎知識を、実物を見ながら身につけませんか?
- めったに見られないリノベ物件の工事中の様子が見られる
- リノベーションでできること、できないことがわかる
- リノベーションの費用感を知ることができる
- てまひま不動産がどのように考えて「暮らしの提案」をしているのか聞ける

「色々な物件を見たけどリビングの広さが足りない…」「収納スペースがもっと欲しい」「キッチンが壁向きじゃなくて対面型がいい!」などの希望が《どんな物件なら叶えられそうか》、工事中のリノベーション現場を見学しながら知ることができます。
リノベーション完成見学会もおこなう予定ですので、どちらも参加することで、リノベーションの流れや、自分がリノベーションするときのイメージがしやすいです!
リノベーションの解体現場を特別公開

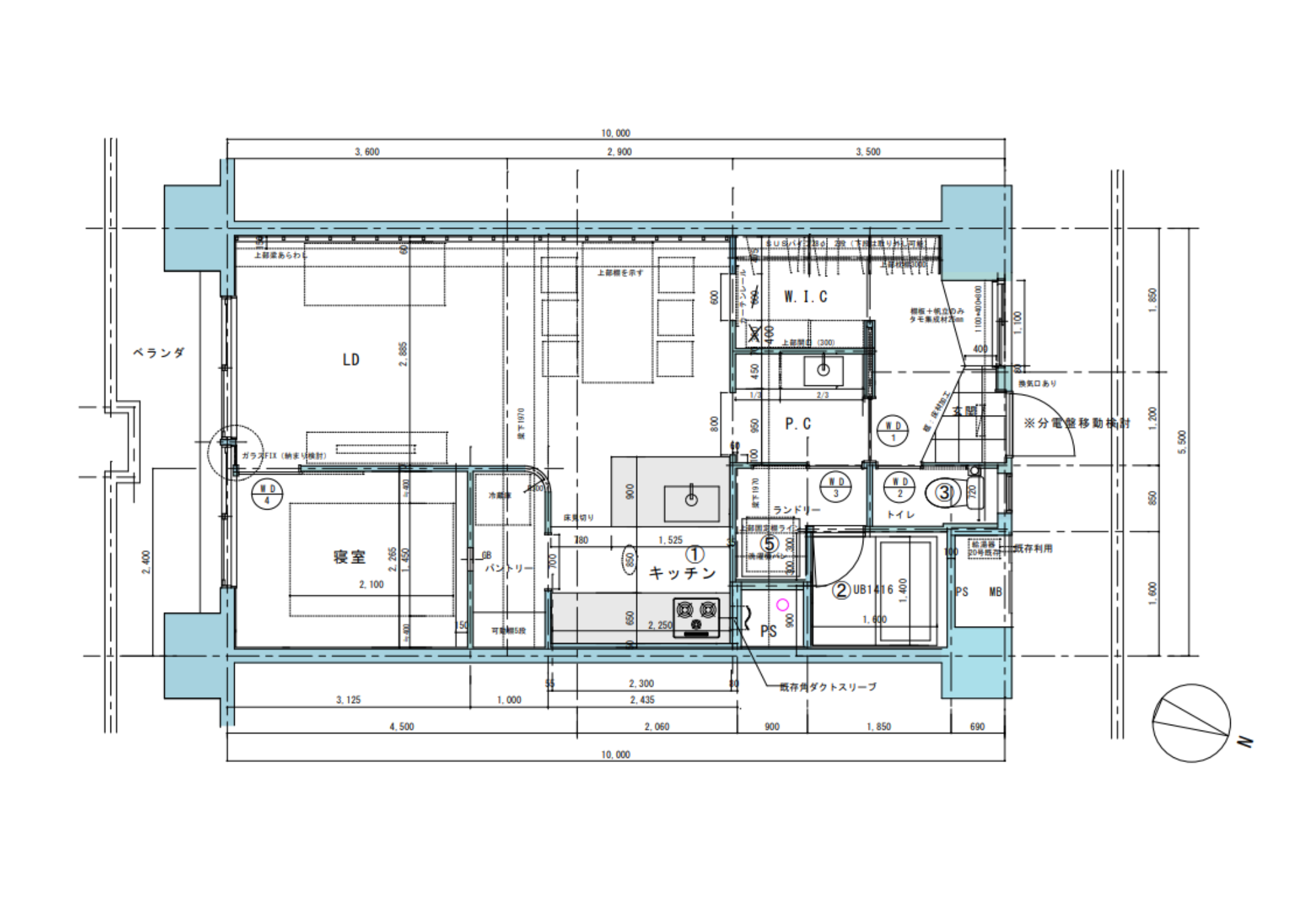
▲完成イメージ間取り図
| 専有面積 | 53.08㎡ |
|---|---|
| バルコニー面積 | 8.07㎡ |
| 間取り | 1LDK |
| 築年数 | 1974年8月築 |
…と物件のスペックだけを見ても、「中身の古さは?」「傷みはない?」とわからない情報は多いもの。だから、マンションが「丸裸」になる工事中見学会で、マンションのことについて学びましょう!

解体現場見学会の見どころ
工事中の建物に入れるのはレア
解体中の物件に入れるのは工事期間中数日のみ。販売中物件の内見時や、リノベーション完成後には見えなくなってしまうマンションの床下等が見られる貴重な機会です。
このタイミングだから確認できる物件の“落とし穴”
物件の内見時には見られない、水道や電気などの配管を実物を見ながら解説。実際に自分がリノベーションをするときの参考にできます。
リノベーションできるところとできないところがある!?
- キッチン、バス・トイレなど、水回りが移動できる範囲ってどこまで?
- 取り壊せる壁とそうでない壁の違いは?(壁や天井の中の構造を確認)
- リノベーションに適した物件とは?
- 共用配管は個人では替えられないけど、専有配管はリノベ時に替えておくと安心
マンションの管理や建物の状態やがわかる
- 交換できない玄関ドアや窓サッシは、管理が行き届いているマンションかの見極めポイント
- インフラ配管や漏水問題
- 「耐震性」に関わる壁や天井の中の構造
- カビや結露跡の有無
その他にもこんなお話もしています
マンションの断熱がどうなっているか
※解体範囲によっては見られない可能性もあります
→断熱材がどのように入っているのか、入っていなければそのリスクをお伝えします。
解体されている状態から、どのように床や天井ができるのか
二重床の構造や天井がどのように貼られるのかをご説明します。また、室内の段差ができる可能性なども話します。(水回りの床があがってしまうなど)
など、マンション選び・リノベーションで「長く住みやすい家にできるか」重要な部分についてお話しします。
ご参加方法と日程
-
-
- 開催場所:マンション現地
- 参加費 :無料
-
参加される方は、ご予約の上「てまひま不動産 西荻窪店」にお越しください。
※開催場所には、店舗からスタッフが同行します。
開催日程と要項
| 参加方法 | 現地見学会 |
|---|---|
| 参加費用 | 無料 |
| 開催日程 | 3月8日 (日)10:00 ~ 11:00 3月8日 (日)13:30 ~ 14:30 3月8日 (日)16:00 ~ 17:00 |
| 注意事項 | ※工事現場のため、小さなお子様のご参加はご遠慮ください。
|







