住んでみてから変えるのもいい リノベで叶えた趣味の暮らし
新築で購入した約50㎡のマンションのローン支払いを終えたことを機に、2018年にリノベーション。新たな間取りで暮らしを楽しまれている東京都江戸川区にあるSさんのお宅へ、宣伝部スタッフが伺いました。
リノベ会社はフィーリングと納得感

宣伝部がお話を伺いました(撮影時のみマスクを外しています)
宣伝部リノベーションをしようと思ったきっかけは?
Sさんこの部屋には新築の時から住んでいて、購入時のローンが払い終わったところで「よし!リノベーションをしよう!」と。まずはリノベーションEXPOに足を運んでみたり、リノベーションをした方の経験談を読んだりして情報収集していました。リノベーション会社さんにも何社か相談していたんです。
宣伝部そのなかの一つがてまひま不動産だったんですね。
Sさん「こんな部屋にしたいんです」とざっくりとした希望をお伝えして、仮のリノベーションプランを設計士さんから提案してもらいました。その中でもてまひま不動産のプランが「ちょうどいい」というか納得できたのでお願いしました。営業スタッフの方と馬が合ったことも大きかったです。

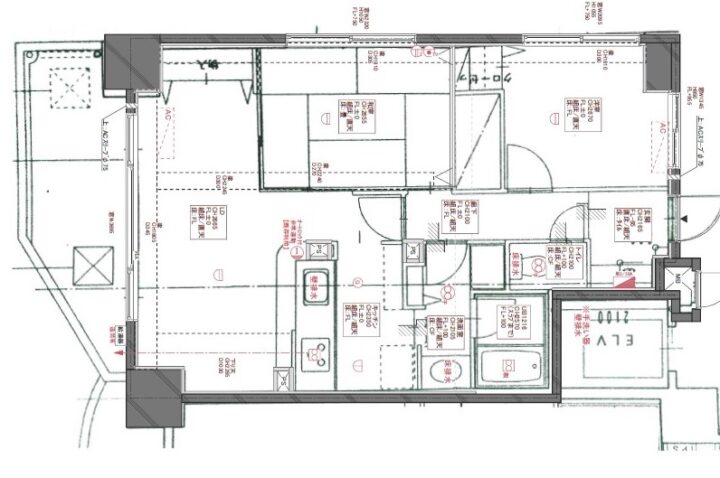
ビフォーの間取り。和室がうまく活用できずもったいないスペースになっていた。

リノベーション後の間取り。約17帖の大きなリビングに変化。和室があった部分には在宅ワークもできるデスクやマッサージチェアが収まっている
Sさんもともとリビングの一角に和室があったんですが、デッドスペースになっていました。そこで仕切りを取り払った間取りにしてもらったんです。
宣伝部2LDKから1LDKに変更したからこんなに広々しているんですね。日当たりもよくてついまったりしちゃいます。
Sさんはい、日中なら電気をつけずに居られるので省エネにもなってますね。前の間取りはキッチンがバルコニー側を向いた対面型だったんですが、コンロの前に壁があったり上に吊戸棚があったので日光が遮られて日中でも電気をつけることが多かったんです。この配置に変えてからは開放感もあるし明るくて気に入っています。

竣工直後のLDK。アカシアの深い色合いと棚、扉の配色をダークブランで合わせ、シックな雰囲気に仕上げた。
積年が生む美しさ
Sさんそうそう、この収納棚の扉はテレビ台の扉を付け替えたものなんですよ。
宣伝部えっ!?
Sさんこのマンションの入居時に親が買ってくれたテレビ台をずっと持っていたんですが、ブラウン管のテレビに合わせたサイズだったので今のテレビには合わず…。「そのまま使うのは厳しいけど、何かに使えないか?」とご相談したところ、造作収納棚の扉に取り入れてもらったんです。
宣伝部素敵…!

左:元の姿のテレビ台/右:テレビ台の扉の一部を造作収納へ移設。収集品を美しく守る扉へと生まれ変わった。
宣伝部床の色も深いダークブラウンで、いい色合いですね。
Sさん最初は淡い白桜色のカバザクラを提案してもらったんです。でもお店に置いているサンプルでアカシアが置いてあっていいなと思ってアカシア材にしました。住んでから特にお手入れはしてないんですが、多少のキズはあっても気にならないレベルですね。

左:竣工当時/右:現在のアカシア床。竣工3年ほどでくすみのあるブラウンから、深みのある琥珀色に変化。無垢材が「経年美化」した。
Sさんリノベーションの希望の一つに「夏場に裸足で歩けること」っていうのがあって。無垢材にしたことで歩いた時にベタベタせず快適に過ごせるようになりました。
宣伝部無垢材は合板のフローリングと違い、湿気を吸ったり吐いたりする調湿機能に優れていて、夏は湿気を吸ってくれるのでサラサラするんですよね。無垢材は熱伝導率が低いので足の裏の熱を奪いにくく、冬も冷えにくいので冷え性の方にもおすすめしています。
見せない収納ですっきり暮らす
宣伝部LDKからキッチンを抜けて広めの洗面・ランドリールームへつながるこの間取りも特徴的ですよね。
Sさん「洗濯スペースをどうにかしたい」っていうのは最初から考えていました。洗面所を広くして、洗濯機の反対側に洗濯物干しスペースを作る形に。前の間取りでは洗濯物をリビングの真ん中に干していたから、その当時から比べるとかなりスッキリした動線になりましたね。
宣伝部リビングに洗濯物があると生活感が出てしまうので裏動線に隠せるのはいいですよね。
Sさん実は無理を言って乾燥機もつけてもらったのでハンガーパイプの出番はほとんどなくなってしまったんですけれども(笑)コートをかけたりして使っています。

洗面室は廊下からキッチンへと通り抜けられる回遊動線。洗濯機から取り出した洗濯物を向かいのハンガーパイプへと干せる。
宣伝部このキッチンカウンターの本棚もきれいに並べられていますよね。
Sさん古い書籍もあって日焼けしているものも多いのでその保護のためにつけ始めたカバーですね。タイトル入れないとどれが何の本だかわからなくなってしまうので凝りだして(笑)大変なのでここにある分だけやってます。
宣伝部本の冊数は多くても、統一感があるからすっきりとして見えますね。見習いたいです…!

ブックカバーをすることで、見た目がガチャガチャせず圧迫感を軽減。
防音リノベーションで叶えるマイシアタールーム
宣伝部寝室は防音仕様になっているんですね。天井吊りのプロジェクターと電動プロジェクタースクリーンもあってまるで映画館のようです。
Sさんもともとカラオケルームとして使おうと思っていたんですけど、最近はすっかりDVD観賞用になりましたね。

電動スクリーンなのでリモコン操作で気が向いたらすぐに映像を再生できる。

スクリーンの後ろの収納棚にも趣味のアニメや漫画がズラリ。収納力にはこだわった設計。
Sさん前の間取りでもホームプロジェクターを使っていたんですが、近隣に迷惑をかけていないか心配で。あとは道路沿いのマンションなので外の音もけっこううるさくて静かな空間になったら嬉しいなとは思っていました。
宣伝部てまひま不動産を運営している株式会社リブランは、「ミュージション」という防音賃貸マンションも手掛けていて、防音に関する知見が深いんです。だから防音施工も良くご依頼いただきますね。
Sさん防音工事の時に前から使っていたプロジェクターも付けなおしていただきました。スピーカーの配線もしてもらっていたし、あとから自分でも追加して、今は部屋の四隅の全方向から音が流れるようになっています。

音響のための配線(竣工時)
Sさんあと、地味にやってよかったなと思ったのは玄関と寝室の間の壁の小窓。玄関はかなり暗くて日中でも必ず電気をつけていたんですけど、この室内窓から日差しが入るので明るくなりました。

寝室につけた小窓からは光とともに換気の風も通る仕組み。
「もう前の間取りでどう過ごしていたか思い出せないです」と笑っていたSさん。住み慣れた街はそのままに、今まで以上にフィットする住まいで今日も暮らしを楽しんでいます。
企画:株式会社リブラン
防音リフォーム・リノベーションのご案内
今回お話を伺ったSさんの寝室の防音リノベーションでも話題にあがりましたが、てまひま不動産が有する高い防音施工の技術は、姉妹ブランドである「防音賃貸マンション ミュージション」より培われてきたものです。
ミュージションでは「思い切り音楽を楽しめる賃貸」を掲げ、20年以上に渡り防音性能を追求してきました。その遮音性能への信頼から、関東圏に全30棟703戸(2024年8月)の建築実績を更新し続けています。
防音施工のノウハウと技術を、リノベーションへ
ミュージションで培った防音技術やノウハウは、てまひま不動産においてもそのままお客様のマンションのリフォーム・リノベーションへ適応させてきましたが、この度、音楽の楽しめる暮らしをより多くのお客様へご案内できるよう、この度「ミュージション防音リフォーム」を開始しました。
ミュージション防音リフォームでは、現在のお住まいや購入予定のマンションへの防音室の設置、各種防音施工とリノベーションのご相談を承っています。
防音リフォーム・リノベーションをご検討のお客様は、ぜひ上記のご案内WEBサイトをご覧いただき、お気軽にご相談をお寄せくださいませ。
- サービスサイト:ミュージション防音リフォーム








