※このページは、販売済み物件の参考情報です。販売中の物件はこちらから。
価格改定!
パレ・ドール西荻窪(3階)
- 所在
- 東京都杉並区上荻4-10-8
- 最寄
- JR中央・総武線「西荻窪」駅 徒歩9分
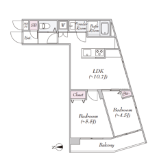
- 間取
- 2LDK / 45.04㎡
- 築年
- 1985年11月
西荻窪駅 徒歩9分!!陽当たり良好の南西角部屋!
- 新耐震基準適合
- 南西角住戸
- 眺望、陽当たり良好
- 大規模修繕工事済
- 利便性の高い大型スーパー「ライフ西荻窪店」目の前!
- 引戸を開ければ、15帖超のLDKとしても利用可能!

【リノベーション内容】(2023年7月完了)
- キッチン(浄水器・食洗機)
- ユニットバス(浴室乾燥機・追い焚き)
- 洗面台
- トイレ
- 建具
- フローリング
- クロス
- フロアタイル
- 照明器具
- 給湯器
- 給排水管
- ハウスクリーニング
物件概要
| 所在地 | 東京都杉並区上荻4-10-8 |
|---|---|
| 最寄駅 | JR中央・総武線「西荻窪」駅 徒歩9分 |
| 間取り | 2LDK |
| 専有面積 | 45.04㎡ |
| 築年月 | 1985年11月 |
| バルコニー面積 | 4.59㎡ |
| 向き | 南西 |
| 所在階 | 3階 |
| 総戸数 | 18戸 |
| 構造 | 鉄筋コンクリート |
| 備考 |
