※このページは、販売済み物件の参考情報です。販売中の物件はこちらから。
価格改定!
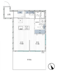
マンション西荻窪(1階)
- 所在
- 東京都杉並区善福寺1-1-18
- 最寄
- JR中央線「西荻窪」駅徒歩13分
- 間取
- 1LDK / 39.03㎡
- 築年
- 昭和50年9月
「西荻窪」駅徒歩13分!東南角部屋!
- 長期修繕計画あり
- エレベーターあり
- TVモニター付インターホン

【リノベーション内容】(令和4年5月完了)
- 玄関:玄関収納・人感センサー
- 浴室:ユニットバス・暖房換気乾燥機
- 洗面:洗面ボウル・カウンター
- トイレ:ウォシュレット一体型
- キッチン:システムキッチン
- 共通:フローリング張替・クロス張替・フロアタイル張替(洗面室・トイレ)・カーテンレール交換・網戸交換・建具交換・洗濯パン・照明器具・分電盤・スイッチ・エアコン新規設置(洋室)・先行配管・給湯器交換 ※給湯器は手配出来次第の交換となります。
【ライフインフォメーション】
- セブンイレブン善福寺店 約110m 約2分
- クイーンズ伊勢丹杉並桃井店 約350m 約4分
- 杉並区立桃井原っぱ公園 約450m 約6分
- 杉並区立井荻小学校 約600m 約8分
- 杉並区立荻窪中学校 約500m 約7分
物件概要
| 所在地 | 東京都杉並区善福寺1-1-18 |
|---|---|
| 最寄駅 | JR中央線「西荻窪」駅徒歩13分 |
| 間取り | 1LDK |
| 専有面積 | 39.03㎡ |
| 築年月 | 昭和50年9月 |
| バルコニー面積 | 専用庭面積 不明㎡ |
| 向き | 東南 |
| 所在階 | 7階建1階部分 |
| 総戸数 | 27戸 |
| 構造 | 鉄筋コンクリート |
| 備考 |
